Jessica Chan / Jessica Chan Real Estate & Management Inc.

4220 Centre Street NE, Land for sale in Highland Park Calgary , Alberta , T2E 2Y9

 MLS® # A2300778

0 bathrooms

Sign up to View

Days on Market

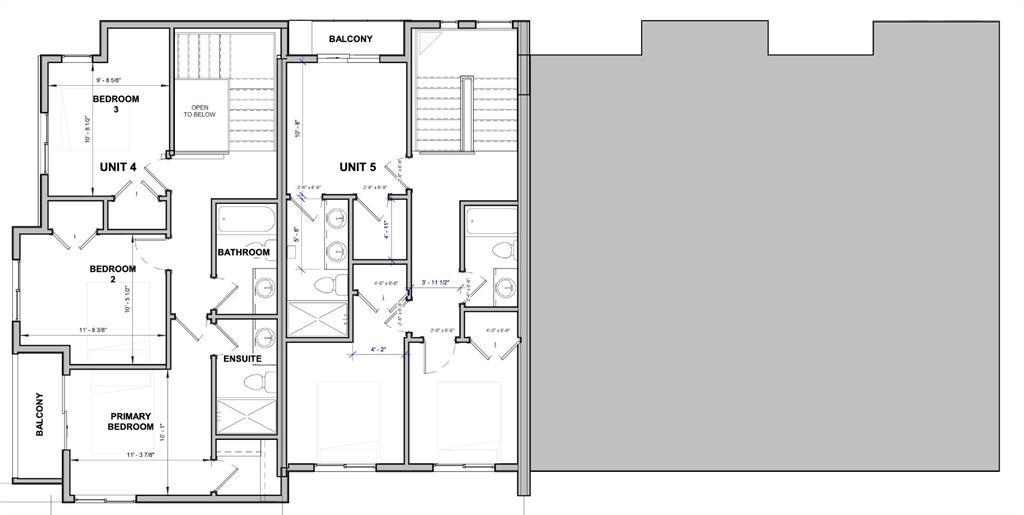
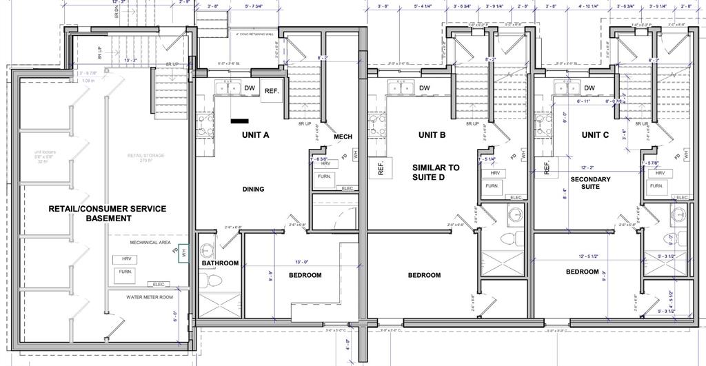
Exceptional MU-1 Development Opportunity – DP Approved & Ready to Build! Prime inner-city CORNER LOT offering MU-1 zoning—allowing for mixed-use development with commercial at grade and up to 6 storeys (5 residential above). Positioned on a high-exposure intersection with strong street visibility, this is a rare opportunity for builders and investors to step into a fully entitled development with no delays, demolition, or uncertainty remaining. The offering includes a fully approved Development Permit for...

Read More

Essential Information

  • MLS® #
    A2300778
  • Property Type
    Residential Land
  • MLS® #
    A2300778
  • Property Type
    Residential Land
  • MLS® #
    A2300778
  • Property Type
    Residential Land

Community Information

  • Postal Code
    T2E 2Y9
  • Postal Code
    T2E 2Y9
  • Postal Code
    T2E 2Y9

Additional Details

  • Zoning
    R-CG
  • Zoning
    R-CG
  • Zoning
    R-CG

$1,095,000

4220 Centre Street NE

Schedule Tour
Contact Agent

$4987/month
Est. Monthly Payment
$
$
%
Learn More