Steven Falk / Coldwell Banker Battle River Realty

5213A 57 Street Camrose , Alberta , T4V 2Y5

 MLS® # A2276601

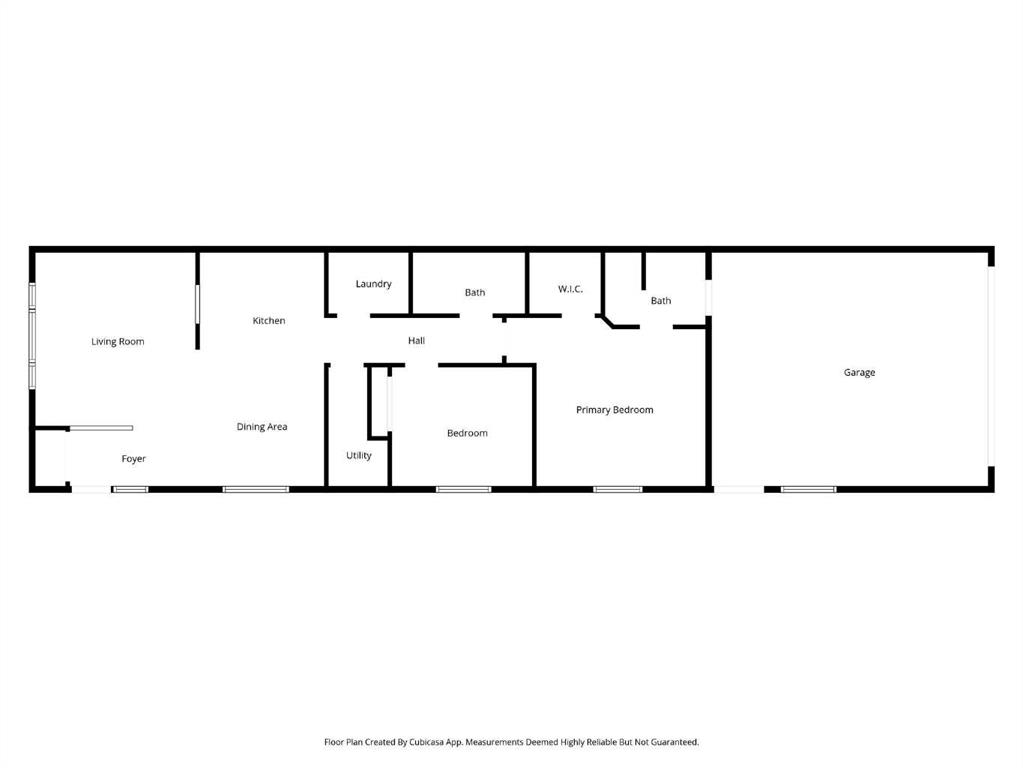
2 bedrooms

2 bathrooms

1,100 sqft

Sign up to View

Days on Market

Move-in ready, zero-step entry home with a double attached garage in a quiet neighborhood! This well-maintained half duplex offers easy, low-maintenance living with no condo fees and no pet restrictions -- a rare find. The welcoming open-concept living area is ideal for entertaining or relaxing with family and friends. Enjoy the comfort of a spacious primary bedroom complete with a private ensuite for added comfort and convenience. The second bedroom is ideal for guests, a home office, or a craft/hobby spac...

Read More

Essential Information

  • MLS® #
    A2276601
  • Full Bathrooms
    2
  • Year Built
    1997
  • Property Type
    Semi Detached (Half Duplex)
  • Property Style
    Attached-Side by Side
    Bungalow
  • MLS® #
    A2276601
  • Full Bathrooms
    2
  • Year Built
    1997
  • Property Type
    Semi Detached (Half Duplex)
  • Property Style
    Attached-Side by Side, Bungalow
  • MLS® #
    A2276601
  • Full Bathrooms
    2
  • Year Built
    1997
  • Property Type
    Semi Detached (Half Duplex)
  • Property Style
    Attached-Side by Side
    Bungalow

Community Information

  • Postal Code
    T4V 2Y5
  • Postal Code
    T4V 2Y5
  • Postal Code
    T4V 2Y5

Services & Amenities

  • Parking
    Double Garage Attached
  • Parking
    Double Garage Attached
  • Parking
    Double Garage Attached

Interior

  • Floor Finish
    Carpet
    Vinyl
    Vinyl Plank
  • Heating
    Forced Air
  • Interior Feature
    Ceiling Fan(s)
    Laminate Counters
    No Smoking Home
    Pantry
    Skylight(s)
    Vinyl Windows
  • Floor Finish
    Carpet, Vinyl, Vinyl Plank
  • Heating
    Forced Air
  • Interior Feature
    Ceiling Fan(s), Laminate Counters, No Smoking Home, Pantry, Skylight(s), Vinyl Windows
  • Floor Finish
    Carpet
    Vinyl
    Vinyl Plank
  • Heating
    Forced Air
  • Interior Feature
    Ceiling Fan(s)
    Laminate Counters
    No Smoking Home
    Pantry
    Skylight(s)
    Vinyl Windows

Exterior

  • Lot/Exterior Features
    Other
  • Roof
    Asphalt Shingle
  • Construction
    Concrete
    Vinyl Siding
    Wood Frame
  • Lot/Exterior Features
    Other
  • Roof
    Asphalt Shingle
  • Construction
    Concrete, Vinyl Siding, Wood Frame
  • Lot/Exterior Features
    Other
  • Roof
    Asphalt Shingle
  • Construction
    Concrete
    Vinyl Siding
    Wood Frame

Additional Details

  • Zoning
    R3
  • Zoning
    R3
  • Zoning
    R3

$275,000

5213A 57 Street

Schedule Tour
Contact Agent

$1253/month
Est. Monthly Payment
$
$
%
Learn More