Julie Greiner / Real Broker

5701 46 Avenue , House for sale in NONE Stettler , Alberta , T0C 2L1

 MLS® # A2300055

1 bedrooms

2 bathrooms

948 sqft

Sign up to View

Days on Market

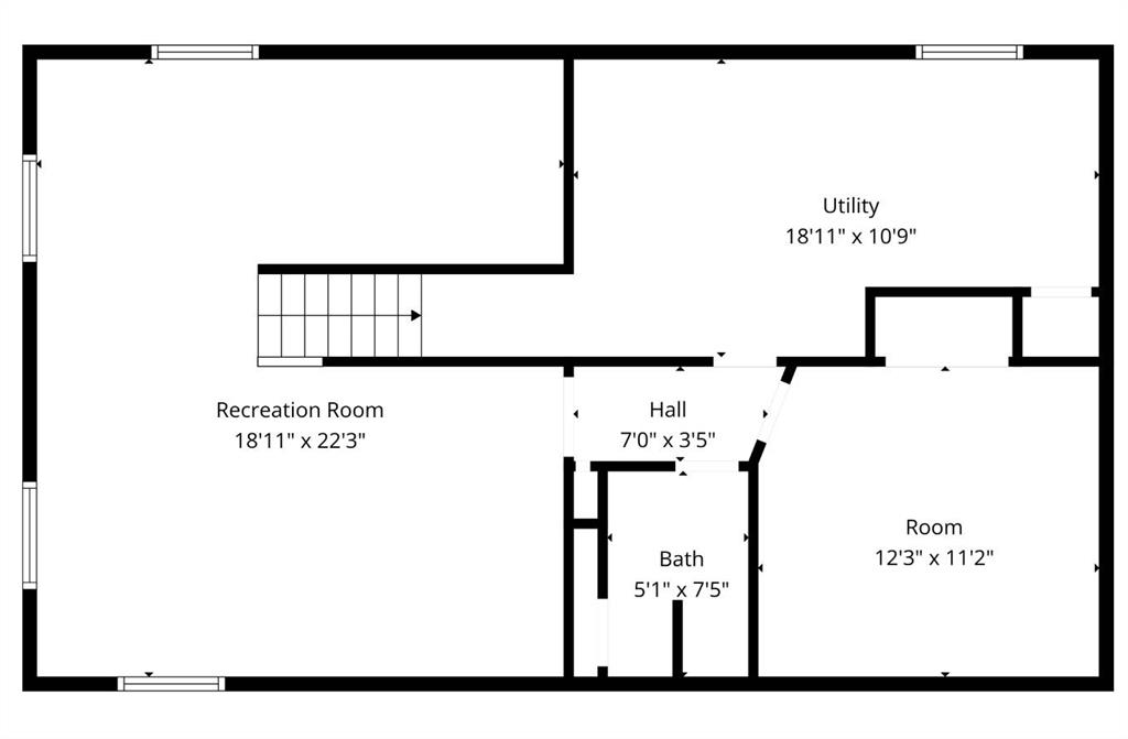
Located in a desirable Stettler neighborhood very close to schools, this corner-lot property offers an opportunity for buyers seeking a project or investment with future potential. The home features one bedroom on the main floor along with main-floor laundry. The lower level includes a living area, den and a half bath, providing additional space for storage, workspace, or flexible use. Outdoor features include a front deck and a covered back deck. A single attached garage and two sheds offer added storage...

Read More

Essential Information

  • MLS® #
    A2300055
  • Full Bathrooms
    2
  • Year Built
    1960
  • Property Type
    Detached
  • Property Style
    Bungalow
  • MLS® #
    A2300055
  • Full Bathrooms
    2
  • Year Built
    1960
  • Property Type
    Detached
  • Property Style
    Bungalow
  • MLS® #
    A2300055
  • Full Bathrooms
    2
  • Year Built
    1960
  • Property Type
    Detached
  • Property Style
    Bungalow

Community Information

  • Postal Code
    T0C 2L1
  • Postal Code
    T0C 2L1
  • Postal Code
    T0C 2L1

Services & Amenities

  • Parking
    Single Garage Attached
  • Parking
    Single Garage Attached
  • Parking
    Single Garage Attached

Interior

  • Floor Finish
    Carpet
    Laminate
    Vinyl
  • Heating
    Forced Air
    Natural Gas
  • Interior Feature
    See Remarks
  • Floor Finish
    Carpet, Laminate, Vinyl
  • Heating
    Forced Air, Natural Gas
  • Interior Feature
    See Remarks
  • Floor Finish
    Carpet
    Laminate
    Vinyl
  • Heating
    Forced Air
    Natural Gas
  • Interior Feature
    See Remarks

Exterior

  • Lot/Exterior Features
    None
  • Roof
    Asphalt Shingle
  • Construction
    Vinyl Siding
    Wood Frame
  • Lot/Exterior Features
    None
  • Roof
    Asphalt Shingle
  • Construction
    Vinyl Siding, Wood Frame
  • Lot/Exterior Features
    None
  • Roof
    Asphalt Shingle
  • Construction
    Vinyl Siding
    Wood Frame

Additional Details

  • Zoning
    R1
  • Zoning
    R1
  • Zoning
    R1

$140,000

5701 46 Avenue

Schedule Tour
Contact Agent

$638/month
Est. Monthly Payment
$
$
%
Learn More